
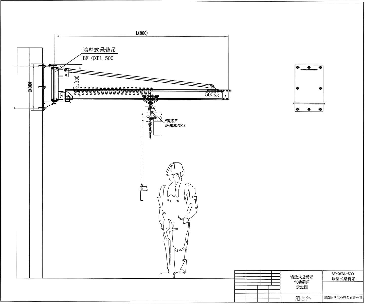
BF-QXBL-500
墻壁式懸臂吊型號:BF-QXBL-500
BF:比孚公司首字母拼音縮寫
QXBL:墻壁式懸臂吊
500:額定載荷
| 項目 | 性能指標 | 單位 |
| 型號 | BF-QXBL-500 | 墻壁式懸臂吊 |
| 額定載荷 | 0-1000(可根據客戶需求定制) | kg |
| 總高度 | H(可根據客戶需求定制) | mm |
| 機械臂長 | L(可根據客戶需求定制) | mm |
| 墻壁頭到機械臂下沿 | H1(可根據客戶需求定制) | mm |
| 工作旋轉覆蓋范圍角度 | 180° | 度 |
| 配30°可調限位 | 度 | |
| 工作級別 | A3 | |
| 運行方式 | 手動 |

新能源動力設備,人機工程學裝卸系統
墻壁式懸臂吊
墻壁式懸臂吊定義:
墻壁式懸臂起重機是在立柱式懸臂起重機的基礎上研制的一種新型物料吊運設備。該機行走道軌安裝在廠房的水泥柱、鋼柱或者承重梁上。圍繞著水泥柱做圓周運行,同時氣動平衡吊或者氣動葫蘆又可完成沿懸臂軌道做橫向運動以及垂直方向的起吊,有效的利用廠房空間。
工作原理:
墻壁式懸臂吊是屬于輕型工作強度起重機,由回轉機械臂、回轉驅動裝置及提升機組成。具有自重輕、跨度大、手動運行在懸臂上作左右直線,旋轉運行,利用氣動平衡吊或氣動葫蘆起吊工件或重物。
墻壁式懸臂吊優點與特性:
1、可根據客戶需求定制墻壁式懸臂吊高度、機械臂跨度等尺寸。
2、機械臂可選鋁合金、KBK、工字鋼等材質軌道。
3、回轉角度0-180度
4、安裝方便,快捷。